Parkeerterrein en entree

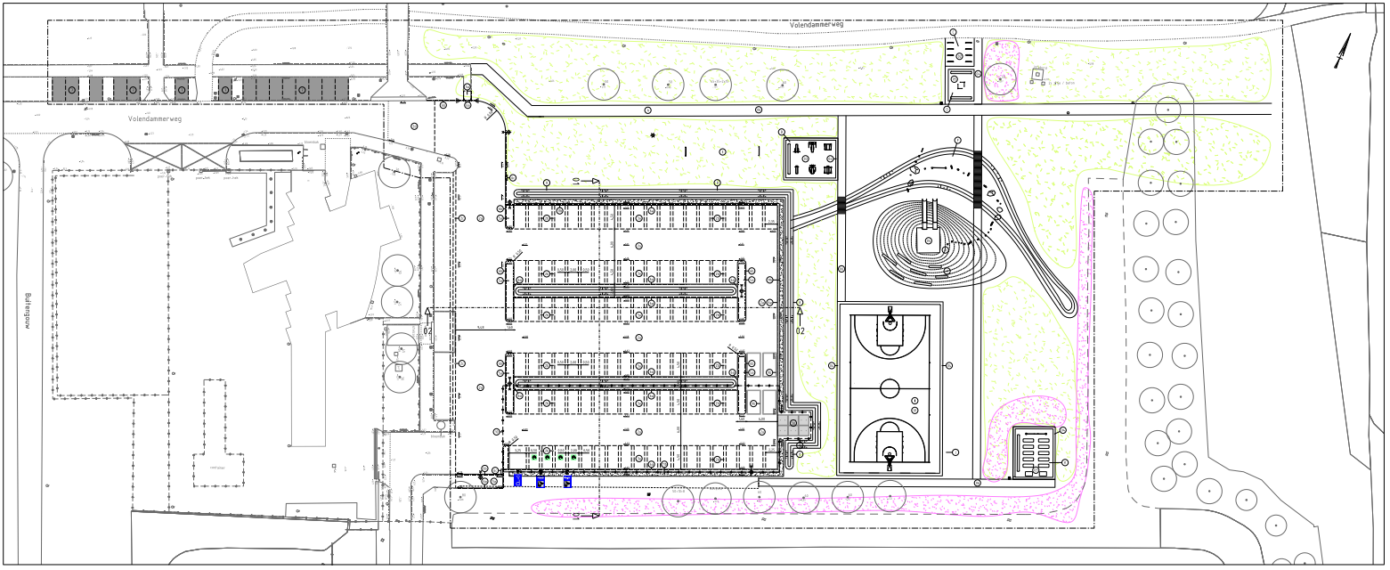
Vernieuwing parkeerterrein en sportzone Volendammerweg
Rond onze sportclub aan de Volendammerweg en De Weeren wordt gewerkt aan een toekomstbestendige sportzone met een vernieuwd parkeerterrein. Samen met de gemeente en betrokken partijen is de afgelopen periode intensief gewerkt aan plannen, voorbereiding en uitvoering.
We houden jullie via deze pagina op de hoogte van de voortgang.
Nieuwe parkeerplaats en sportzone
De herinrichting zorgt straks voor:
- Een overzichtelijke en veilige parkeerplaats
- Een aantrekkelijke sportzone met nieuwe voorzieningen
- Een betere inrichting van de openbare ruimte
Tijdelijke parkeersituatie (2025)
In het voorjaar van 2025 zijn de werkzaamheden aan de Volendammerweg gestart. Hierdoor is de bestaande parkeerplaats tijdelijk niet beschikbaar geweest.
Om de bereikbaarheid van onze sportclub zo goed mogelijk te waarborgen:
- Zijn tijdelijke parkeerplaatsen aangelegd aan de Volendammerweg en de Buitengouw
- Is extra bewegwijzering geplaatst
- Is bezoekers gevraagd tijdelijk te parkeren aan de Volendammerweg vóór de A10-tunnel
We realiseren ons dat dit soms betekende dat er iets verder gelopen moest worden. Dank voor ieders begrip en flexibiliteit in deze periode.
Huidige fase: zetting van de grond
In oktober en november 2025 is ophoogzand aangebracht. Dit is nodig om de grond te laten inklinken (de zogenoemde zettingstijd). Deze periode duurt ongeveer een half jaar. Hierdoor lijkt het soms alsof er weinig gebeurt op het terrein, maar dit is een noodzakelijke technische stap voor een duurzaam eindresultaat.
Ophogen terrein: oktober 2025 – mei 2026 (afhankelijk van de zetting)
Planning 2026 (hoofdlijnen)
De komende periode staat in het teken van afronding en realisatie van de nieuwe voorzieningen:
- Oplevering parkeerplaats: medio juni – augustus 2026
- Realisatie sportzone:
- Basketbalveld met halve overkapping
- Bootcampveld
- Diverse sport- en speeltoestellen
- Oplevering sportzone: medio september 2026
- Aanleg fietspad richting Noorderlicht: medio november/december 2026
Met deze ontwikkelingen ontstaat een complete en aantrekkelijke sport- en verblijfsomgeving voor leden, bezoekers en buurtbewoners.
Project A10 Groenboog – Onderdoorgangen
Parallel aan de herinrichting loopt het project rond de negen onderdoorgangen van de A10 richting de Groenboog.
De Groenboog vormt een groene buffer langs de A10. Hoewel het gebied veel voorzieningen kent, is het voor fietsers en voetgangers momenteel lastig doorkruisbaar. Door te investeren in de onderdoorgangen wordt het gebied beter toegankelijk voor:
- Wandelaars (met en zonder hond)
- Hardlopers
- Fietsers
- Ecologie en groenontwikkeling
De onderdoorgang aan de Volendammerweg is één van de negen tunnels die worden verbeterd. In 2024 hebben bewoners en geïnteresseerden hun ideeën kunnen delen tijdens participatiemomenten. In 2025 wordt gestart met de uitvoering van de eerste tunnel.
Samen werken aan een mooie sportomgeving
De planningen blijven afhankelijk van onder andere weersomstandigheden en technische factoren. Wij blijven jullie informeren over belangrijke ontwikkelingen.
Samen werkt AHC Noorderlicht en de gemeente Amsterdam en haar betrokken partnerts toe naar een veilige, moderne en aantrekkelijke sportomgeving waar we als club trots op kunnen zijn.




